城陽市平川長筬 土地 建築条件付き
【城陽市長筬 土地《建築条件付き》のご紹介】
◆土地《22.38坪》前面T字路で開放的!!陽当り・通風良好
◆コンビニ徒歩4分、郵便局徒歩7分と近く生活便利地
◆前道約6mとゆったりとした広さ
◆近鉄『久津川駅』徒歩10分
古川小学校 北城陽中学校
◇物件探しからアフターフォローまで、お客様に寄り添い徹底サポート!
◇無理のない返済計画で、憧れのマイホームを実現!
ローンシミュレーションこの物件を購入した場合の、月々の支払い価格の一例です。借り入れを保証するものではございません。
- 返済期間
-
- 金利
-
- ボーナス時の増額(1回分)
-
- 借入金額:
-
- 頭金:
-

- 毎月の返済額:
(※元利均等方式 金利5.00%まで ※返済年数5~50年まで入力できます)
(※ボーナスは年2回で計算しています。1000万円まで入力できます)
(※物件購入時、その他諸費用が発生する場合がございます)
担当者のコメント 山田純樹

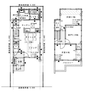
- 建物プラン(建物価格:1,770万円)
1F:37.26㎡ 2F:36.86㎡ 延べ:74.12㎡
■公園徒歩1分、保育園徒歩5分と子育て世代の方にもオススメのエリア
◆◇◆〈こちらの物件〉に興味がある方はお気軽にお問い合わせ下さい!◆◇◆
《現地》を一度ご覧になられませんか?《周辺環境》も含め、現地をご案内いたします。お気軽にお問い合わせ下さい(^^)/
〈こちらの物件〉に興味がある方はお気軽にお問い合わせ下さい!月々のお支払い希望額からお客様が購入可能な物件の価格をシミュレーション致します(*´▽`*)
《ローンの事やお家探しのご相談は(株)ゆいホームにお任せ下さい。ちょっとした疑問にも解りやすくお応えします。》お気軽にどうぞ(^^)/
「毎月の支払いはいくらになるの?」 「今の家賃とそんなに変わらないなら・・」 「土地から探して注文建築するのは簡単?」 「今の持家を売却して新居に引っ越したい!」
(株)ゆいホームでは、ご購入・ご売却・住宅ローンなどのあらゆるご相談にお応えします。 もちろん相談は無料です!まずはお気軽にお電話下さい。
ゆいホームでは、お家の購入について不安やお悩みの方に「マイホームとお金の話~無料診断実施中」です。この機会にぜひお試し下さい(^◇^)まずは、お問合せをお待ちしております!!
ポイント・特徴
物件概要
【売地】 物件番号:94817329 情報更新日:2025年11月06日 次回更新予定日:2025年11月20日| 所在地 | 京都府城陽市平川長筬 | ||
|---|---|---|---|
| 交通 | |||
| 価格 | 1,220万円 | ||
| 土地の敷金/保証金 | -/- | 借地料/借地期間 | -/- |
| 土地面積(坪数) | 74.00㎡(22.38坪) | 坪単価 | 54.51万円 |
| 私道負担面積/セットバック | -/無 | 高圧線下面積 | - |
| 傾斜地部分面積 | - | 路地状敷地 | - |
| 土地権利 | 所有権 | 接道状況 | 一方(南 公道 6.1m 間口 5.4m) |
| 都市計画 | 市街化区域 | 用途地域 | 第一種低層住居専用 |
| 建築条件 | 有 | 地目/地勢 | 宅地/平坦 |
| 建ぺい率 | 60% | 容積率 | 100% |
| 総区画数 | 1区画 | 販売区画数 | 1区画 |
| 国土法届出要否 | 不要 | その他の法令上の制限 | 高度地区/※第一種高度地区※法22条区域※宅地造成工事規制区域 |
| 取引態様 | 専属専任媒介 | 現況 | 更地 |
| 引渡時期 | 相談 | 引渡条件 | 更地渡 |
| 最適用途 | 住宅用地 | ||
| 物件番号 | 94817329 | 取引条件の有効期限 | 2025年11月20日 |
| 設備条件 |
|
||
| 備考 |
【古川小 北城陽中】 ※第一種高度地区 ※法22条区域 ※宅地造成工事規制区域 ※建物プラン(建物価格:1770万円) ※外構費込 地盤改良費別 ※司法書士は売主の指定による 〔情報と現況が異なる場合は、現況優先といたします。〕 |
||
| 取扱会社 |
|
||
※建築条件付き土地とは、その土地に建築する建物の建築請負契約が、 一定期間内に成立することを条件として売買される土地のことをいいます。 建築請負契約成立に向けて設計プランを協議するため、 土地購入者が自己の希望する建物の設計協議をするために必要な相当の期間の交渉期間が設定され、 その期間内で希望を満たすプランが実現できるかどうかにより結論を出します。 なお、この期間は概ね3ヶ月程度とされています。 納得のいくプランが出来ず、建築請負契約が成立しない場合、土地売買契約は白紙に戻り、 土地契約にかかった代金(土地代金、手付金など)は名目のいかんに関わらず、全て返却されます。
※地図上に表示される物件の位置は付近住所に所在することを表すものであり、実際の物件所在地とは異なる場合がございます。





































