八幡市八幡舞台 土地
【八幡市八幡舞台 土地《建築条件付き》のご紹介】
◆敷地《約30坪》前道約6.5mで駐車もラクラク
◆約11.6mのゆったりとした間口
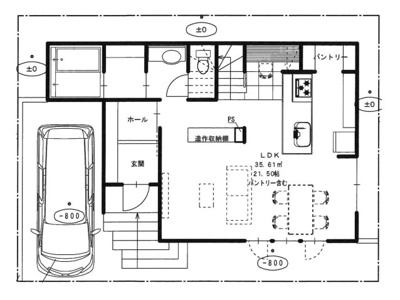
◆建物参考プラン図あり
◆京阪『石清水八幡宮駅』徒歩37分 京阪バス『広門停』徒歩7分
中央小学校 男山中学校
◇物件探しからアフターフォローまで、お客様に寄り添い徹底サポート!
◇無理のない返済計画で、憧れのマイホームを実現!
■小学校が徒歩5分で通学も安心
■スーパー《ラ・ムー八幡店》へは徒歩7分ですので毎日の買い物がラクラク
お家探しは「注文建築」にするべきか「建売住宅」にするべきか、ゆいホームが一緒に考えます。『無理のない理想のマイホーム』を実現しましょう!まずは、お話しをお聞かせ下さい。ご相談は、もちろん無料です!
「どれくらいの建物が建つの」「建物価格はどれくらい?」お客様の知りたいをハウスアドバイザーがお応えします。
◆◇◆注文建築に興味がある方は、お気軽にお問い合わせ下さい!◆◇◆
京都市、宇治市、城陽市で不動産をお探しの方は、株式会社ゆいホームまでお問い合わせ下さい。ご希望のお家をご提案させて頂きます。また、ご売却・住宅ローン等あらゆるご相談にお応え致します。どうぞ お気軽にお問い合わせ下さい!
【☎ 075-606-2431まで】
物件情報
周辺施設
コメント【外観】敷地約30坪の整形地です。約11.6mの広々とした間口で約6.5mにゆったりとした前道に面しています。現況更地ですので、スピーディーに建築計画を進められます。
八幡市八幡舞台 土地 の物件概要
【売地】| 所在地 | 京都府八幡市八幡舞台 | ||
|---|---|---|---|
| 交通 | |||
| 価格 | 1,380万円 | 総区画数 | 1区画 |
| 土地面積 | 100.01㎡ | 開発面積 | - |
| 坪数 | 30.25坪 | 坪単価 | 45.62万円 |
| 種別 | 売地 | 地目/地勢 | 宅地 /平坦 |
| 備考 | 一度、実際にご覧になってみませんか?暮らしやすい周辺環境も含め、スタッフがご案内いたします。お家探しの第一歩としてでも大丈夫です(^^)/お気軽にお問い合わせ下さいね♪ 〈こちらの物件〉に興味がある方はお気軽にお問い合わせ下さい!月々のお支払い希望額からお客様が購入可能な物件の価格をシミュレーション致します(*´▽`*) 《ローンの事やお家探しのご相談は(株)ゆいホームにお任せ下さい。ちょっとした疑問にも解りやすくお応えします。》お気軽にどうぞ(^^)/ 「毎月の支払いはいくらになるの?」 「今の家賃とそんなに変わらないなら・・」 「土地から探して注文建築するのは簡単?」 「今の持家を売却して新居に引っ越したい!」 (株)ゆいホームでは、ご購入・ご売却・住宅ローンなどのあらゆるご相談にお応えします。 もちろん相談は無料です!まずはお気軽にお電話下さい。 ゆいホームでは、お家の購入について不安やお悩みの方に「マイホームとお金の話~無料診断実施中」です。この機会にぜひお試し下さい(^◇^)まずは、お問合せをお待ちしております!! |
||
| 取扱会社 |
|
||
※地図上に表示される物件の位置は付近住所に所在することを表すものであり、実際の物件所在地とは異なる場合がございます。















